Mieszkanie na sprzedaż

Gdańsk, Śródmieście

4 pokoje
86.76 m²
24 895,00 zł/m2
1 piętro
HFC-MS-2233
Oblicz ratę kredytu

2 159 890 zł

Nowa oferta

Szczegóły oferty

Symbol oferty HFC-MS-2233
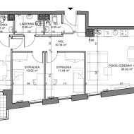
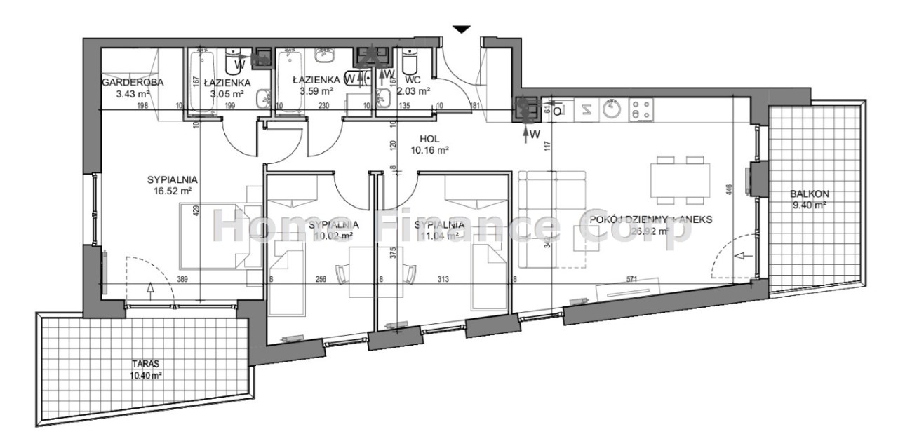
Powierzchnia 86,76 m²
Powierzchnia użytkowa [m2] 86,76 m²
Liczba pokoi 4
Liczba sypialni 3
Rodzaj budynku apartamentowiec
Standard
Piętro 1
Stan lokalu deweloperski
Okna drewniane
Balkon jest
Winda tak
Pierwsza linia brzegowa tak
J&A

J&A

wspołwłaściciel/manager

Napisz wiadomość 162 Ofert

Opis nieruchomości

Apartament w prestiżowej inwestycji powstający nad brzegiem Motławy w historycznej lokalizacji otaczającej jej Starego Miasta.
Inwestycja zaprojektowana zgodnie z nowoczesną architekturą z elementami industrialnymi (ciemne szkoło, antracytowa blacha, płytki klinkierowe na elewacji) nawiązujący  materiałami do „ceglanego Gdańska”, dzięki czemu współgrają z historyczną zabudową w jej sąsiedztwie.

Mieszkańcy nowej inwestycji będą cieszyć się  bliskością Motławy i tętniącą życiem pobliską gdańską starówką, stocznią, Polską Filharmonią Bałtycką, licznymi restauracjami i kawiarniami muzeami czy galeriami sztuki.

W sprzedaży pozostają apartamenty od 26 do 140m2 (1-5 piętro), miejsca postojowe w hali garażowej w cenie 89 000 – 139 000 zł. oraz komórki lokatorskie. Termin realizacji IV kw. ’25 / I kw. ’26 r.

W celu uzyskania szczegółowych informacji i umówienia spotkania w miejscu realizacji projektu zapraszam do kontaktu telefonicznego.

Arkadiusz
tel. 532278733

Lokalizacja nieruchomości

Kalkulatory

Kalkulator kredytowy

Wysokość raty

PLN
%

Kalkulator kosztów

Taksa notarialna
(opłata notarialna)

Wniosek o wpis do WKW

VAT od prowizji
agencji nieruchomości

Vat od taksy notarialnej
(opłaty notarialnej)

Prowizja agencji nieruchomości

Wypisy aktu notarialnego

Razem

Uwaga: mogą wystąpić dodatkowe opłaty za założenie księgi wieczystej oraz ustanowienie hipoteki.

PLN
PLN
PLN
PLN
PLN
%
PLN

Podobne oferty

Mieszkanie na sprzedaż

Gdańsk, Śródmieście

3 Pokoje 70 m2 24 300,00 zł/m2

Mieszkanie na sprzedaż

Gdańsk, Śródmieście

3 Pokoje 75 m2 26 370,01 zł/m2
Nowa oferta

Mieszkanie na sprzedaż

Gdańsk, Śródmieście

3 Pokoje 83 m2 29 440,00 zł/m2
Nowa oferta

wspołwłaściciel/manager

Proszę wprowadzić poprawne imię i nazwisko
Proszę wprowadzić poprawny numer telefonu
Proszę wprowadzić poprawny adres e-mail
Proszę zaznaczyć wymagane zgody
Rozwiąż równanie:
30 6
Niepoprawny wynik