Mieszkanie na sprzedaż Gdańsk, Śródmieście, Główne Miasto

5 pokoi
142.83 m²
28 694,89 zł/m2
4 piętro
HFC-MS-2149
Oblicz ratę kredytu

4 098 491 zł

Mieszkanie na sprzedaż

Szczegóły oferty

Inwestycja Motlava Residence
Symbol oferty HFC-MS-2149
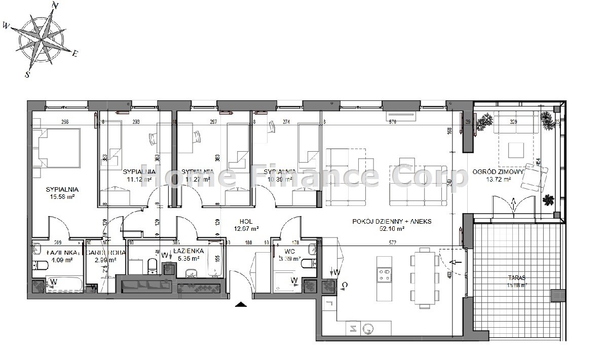
Powierzchnia 142,83 m²
Powierzchnia użytkowa [m2] 142,83 m²
Powierzchnia balkonów/tarasów 100,00 m²
Liczba pokoi 5
Liczba sypialni 4
Rodzaj budynku apartamentowiec
Standard
Piętro 4
Stan lokalu deweloperski
Winda tak
Tarasy taras duży
J&A

J&A

wspołwłaściciel/manager

Napisz wiadomość 178 Ofert

Opis nieruchomości

Apartament 140m2 z 100m2 tarasem na ostatnim piętrze w prestiżowej inwestycji powstający nad brzegiem Motławy w historycznej lokalizacji otaczającej jej Starego Miasta.
Inwestycja zaprojektowana zgodnie z nowoczesną architekturą z elementami industrialnymi (ciemne szkoło, antracytowa blacha, płytki klinkierowe na elewacji) nawiązujący  materiałami do „ceglanego Gdańska”, dzięki czemu współgrają z historyczną zabudową w jej sąsiedztwie.

Mieszkańcy nowej inwestycji będą cieszyć się  bliskością Motławy i tętniącą życiem pobliską gdańską starówką, stocznią, Polską Filharmonią Bałtycką, licznymi restauracjami i kawiarniami muzeami czy galeriami sztuki.
W sprzedaży pozostają apartamenty od 26 do 140m2, miejsca postojowe w hali garażowej w cenie 89 000 – 139 000 zł. oraz komórki lokatorskie. Termin realizacji IV kw. ’25 / I kw. ’26 r.
W celu uzyskania szczegółowych informacji i umówienia spotkania w miejscu realizacji projektu zapraszam do kontaktu telefonicznego.

Arkadiusz
tel. 532278733
 

Lokalizacja nieruchomości

Kalkulatory

Kalkulator kredytowy

Wysokość raty

PLN
%

Kalkulator kosztów

Taksa notarialna
(opłata notarialna)

Wniosek o wpis do WKW

VAT od prowizji
agencji nieruchomości

Vat od taksy notarialnej
(opłaty notarialnej)

Prowizja agencji nieruchomości

Wypisy aktu notarialnego

Razem

Uwaga: mogą wystąpić dodatkowe opłaty za założenie księgi wieczystej oraz ustanowienie hipoteki.

PLN
PLN
PLN
PLN
PLN
%
PLN

Podobne oferty

Mieszkanie na sprzedaż

Gdańsk, Śródmieście

4 pokoje 110 m2 27 910,00 zł/m2

Mieszkanie na sprzedaż

Gdańsk, Śródmieście

4 pokoje 116 m2 34 670,00 zł/m2
Oferta specjalna

Mieszkanie na sprzedaż

Gdańsk, Śródmieście

4 pokoje 121 m2 26 970,00 zł/m2
Oferta specjalna
Oferta specjalna

Mieszkanie na sprzedaż

Gdańsk, Śródmieście

5 pokoi 123 m2 36 160,00 zł/m2
Oferta specjalna

wspołwłaściciel/manager

Proszę wprowadzić poprawne imię i nazwisko
Proszę wprowadzić poprawny numer telefonu
Proszę wprowadzić poprawny adres e-mail
Proszę zaznaczyć wymagane zgody
Rozwiąż równanie:
22 8
Niepoprawny wynik