Mieszkanie na sprzedaż

Warszawa, Wola

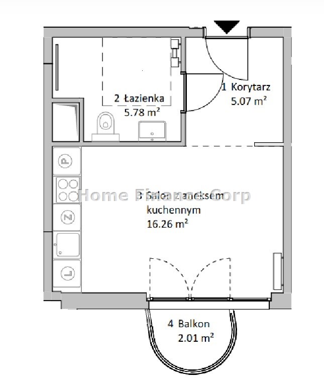
1 pokoje
27.17 m²
16 756,86 zł/m2
4 piętro
HFC-MS-2218
Oblicz ratę kredytu

455 284 zł

Nowa oferta

Szczegóły oferty

Symbol oferty HFC-MS-2218
Powierzchnia 27,17 m²
Powierzchnia użytkowa [m2] 27,17 m²
Liczba pokoi 1
Liczba sypialni 1
Rodzaj budynku apartamentowiec
Standard
Piętro 4
Stan lokalu deweloperski
Okna PCV
Balkon jest
Winda tak
Pierwsza linia brzegowa tak
J&A

J&A

wspołwłaściciel/manager

Napisz wiadomość 158 Ofert

Opis nieruchomości

BEZPOŚREDNIO OD DEWELOPERA  - bez prowizji i podatku PCC !

Zadzwoń i zapytaj o mega rabaty!

Gwarantowane 35% stopy zwrotu w pierwszych pięciu latach!

Podana cena 455 284 zł jest ceną netto + 23% VAT (560 000 zł. brutto)


Apartament w unikatowej inwestycji budowanej z najwyższej klasy materiałów łączącej w sobie wielkomiejski styl i kameralność zabudowy powstającej z myślą o najbardziej wymagających użytkownikach ceniących wygodę i nowoczesny design.

Budynek zlokalizowany w bezpośrednim sąsiedztwie centrum targowo-wystawienniczego EXPO XXI oraz blisko centrum biznesowego Warszawy powstającego w rejonie Ronda Daszyńskiego

W tym ultranowoczesnym budynku powstaje dla użytkowników stylowe reprezentacyjne lobby, wysokiej klasy restauracja, 200 mkw. strefa coworkingowa z salą konferencyjną i małą biblioteką, strefa fitness z siłownią i saunami oraz rekreacyjna z bilardem, PlayStation i piłkarzykami, klubowa sala kinowa, rowerownia ze strefą do naprawy i mycia rowerów.
W projekcie można kupić lokal wykończony pod klucz, według standardu operatora zarządzającego później najmem lub w standardzie deweloperskim do własnej aranżacji.
Budynek posiadać będzie zielone ekologiczne dachy, panele fotowoltaiczne oraz ogrody deszczowe. W częściach wspólnych zaprojektowano oświetlenie LED, a wewnątrz i na zewnątrz budynku  monitoring z kontrolą dostępu.

Dla inwestorów zainteresowanych wynajmem przygotowano kompleksową usługę zarządzania najmem przez operatora hotelowego z podziałem zysku 70/30 – właściciel/operator. Zakładana stopa zwrotu ok 8% w skali roku.

Podana cena apartamentu jest wartością  brutto z 23%-owym VAT – em.

W sprzedaży posiadamy również inne apartamenty w metrażu 26-57m2

Termin realizacji - IV kwartał  2025 r. - I kwartał 2026 r. oddanie do użytkowania

W celu uzyskania szczegółowych informacji proszę o kontakt

Arkadiusz,
tel. 532278733

 

Lokalizacja nieruchomości

Kalkulatory

Kalkulator kredytowy

Wysokość raty

PLN
%

Kalkulator kosztów

Taksa notarialna
(opłata notarialna)

Wniosek o wpis do WKW

VAT od prowizji
agencji nieruchomości

Vat od taksy notarialnej
(opłaty notarialnej)

Prowizja agencji nieruchomości

Wypisy aktu notarialnego

Razem

Uwaga: mogą wystąpić dodatkowe opłaty za założenie księgi wieczystej oraz ustanowienie hipoteki.

PLN
PLN
PLN
PLN
PLN
%
PLN

Podobne oferty

Mieszkanie na sprzedaż

Warszawa, Wola

1 Pokoje 27 m2 16 626,45 zł/m2

Mieszkanie na sprzedaż

Warszawa, Wola

1 Pokoje 27 m2 17 000,00 zł/m2

Mieszkanie na sprzedaż

Warszawa, Wola

2 Pokoje 27 m2 16 626,45 zł/m2

Mieszkanie na sprzedaż

Warszawa, Wola

2 Pokoje 27 m2 16 626,45 zł/m2

wspołwłaściciel/manager

Proszę wprowadzić poprawne imię i nazwisko
Proszę wprowadzić poprawny numer telefonu
Proszę wprowadzić poprawny adres e-mail
Proszę zaznaczyć wymagane zgody
Rozwiąż równanie:
30 4
Niepoprawny wynik