Mieszkanie na sprzedaż Gdańsk, Śródmieście

2 pokoje
30.61 m²
30 274,98 zł/m2
1 piętro
HFC-MS-2151
Oblicz ratę kredytu

926 717 zł

Mieszkanie na sprzedaż

Szczegóły oferty

Inwestycja Motlava Residence
Symbol oferty HFC-MS-2151
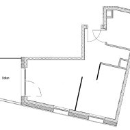
Powierzchnia 30,61 m²
Powierzchnia użytkowa [m2] 30,61 m²
Liczba pokoi 2
Liczba sypialni 1
Rodzaj budynku apartamentowiec
Standard
Piętro 1
Stan lokalu deweloperski
Balkon jest
Winda tak
J&A

J&A

wspołwłaściciel/manager

Napisz wiadomość 117 Ofert

Opis nieruchomości


Sprzedaż realizowana bezpośrednio przez dewelopera - bez prowizji i podatku PCC!

Zadzwoń / napisz i zapytaj o aktualny rabat!


Apartament w prestiżowej ODDANEJ DO UŻYTKOWANIA inwestycji nad brzegiem Motławy w historycznej lokalizacji Starego Miasta.
Inwestycja zaprojektowana zgodnie z nowoczesną architekturą z elementami industrialnymi (ciemne szkoło, antracytowa blacha, płytki klinkierowe na elewacji) nawiązujący  materiałami do „ceglanego Gdańska”, dzięki czemu współgrają z historyczną zabudową w jej sąsiedztwie.

Mieszkańcy nowej inwestycji będą cieszyć się  bliskością Motławy i tętniącą życiem pobliską gdańską starówką, stocznią, Polską Filharmonią Bałtycką, licznymi restauracjami i kawiarniami muzeami czy galeriami sztuki.

W sprzedaży pozostają apartamenty od 26 do 140m2 (1-5 piętro), miejsca postojowe w hali garażowej w cenie 89 000 – 139 000 zł. oraz komórki lokatorskie. Termin realizacji IV kw. ’25 / I kw. ’26 r.

W celu uzyskania szczegółowych informacji i umówienia spotkania w miejscu realizacji projektu zapraszam do kontaktu telefonicznego.

Kawalerka z możliwością aranżacji wnętrza na mieszkanie 2 pokojowe.

Cena promocyjna na DNI OTWARTE !!!



Arkadiusz
tel. 532278733

Lokalizacja nieruchomości

Kalkulatory

Kalkulator kredytowy

Wysokość raty

PLN
%

Kalkulator kosztów

Taksa notarialna
(opłata notarialna)

Wniosek o wpis do WKW

VAT od prowizji
agencji nieruchomości

Vat od taksy notarialnej
(opłaty notarialnej)

Prowizja agencji nieruchomości

Wypisy aktu notarialnego

Razem

Uwaga: mogą wystąpić dodatkowe opłaty za założenie księgi wieczystej oraz ustanowienie hipoteki.

PLN
PLN
PLN
PLN
PLN
%
PLN

Podobne oferty

Mieszkanie na sprzedaż

Gdańsk, Śródmieście

1 pokoj 27 m2 31 000,00 zł/m2

Mieszkanie na sprzedaż

Gdańsk, Śródmieście

2 pokoje 37 m2 27 201,82 zł/m2
Oferta specjalna

Mieszkanie na sprzedaż

Gdańsk, Śródmieście

1 pokoj 27 m2 30 333,33 zł/m2
Oferta specjalna

Mieszkanie na sprzedaż

Gdańsk, Śródmieście

1 pokoj 26 m2 30 234,97 zł/m2

wspołwłaściciel/manager

Proszę wprowadzić poprawne imię i nazwisko
Proszę wprowadzić poprawny numer telefonu
Proszę wprowadzić poprawny adres e-mail
Proszę zaznaczyć wymagane zgody
Rozwiąż równanie:
11 9
Niepoprawny wynik